Velký dům čelní vstup - Hruškový sad //

ŘADOVÉ DOMY SLEZSKÁ OSTRAVA
HRUŠKOVÝ SAD //
Přejít na obsah


Cena od 6 340 000 Kč. vč. DPH



KONTAKT

j.hrdina@stavos-stavba.cz
724 235 607
DEVELOPERSKÝ PROJEKT
O PROJEKTU

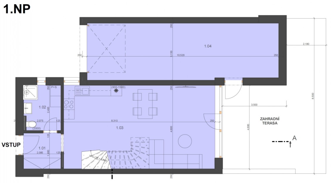
Jedná se o výstavbu 32 řadových rodinných domů na Slezské Ostravě. Projekt nabízí tři druhy domů. Malý, velký s čelním vstupem a velký s bočním vstupem. Zahájení na jaře tohoto roku. Pozemek se nachází v blízkosti křížení ulic Betonářská a Ciorova, Slezská Ostrava.
Návrat na obsah